

 Doğanın Ritmiyle
Şehrin Kalbinde
Akcity Point, Rize Merkez’in üç mahallesinin kesişiminde, şehrin en değerli lokasyonunda yükseliyor. Modern cephe tasarımı, akıllı ev teknolojileri ve fonksiyonel yaşam alanlarıyla sadece bir konut değil, şehrin merkezinde ayrıcalıklı bir yaşam deneyimi sunuyor. Ulaşım avantajı ve çevresindeki sosyal–ticari imkânlarla birleştiğinde, Akcity Point şehrin dinamizmini konfor ve prestijle buluşturan ideal bir adres haline geliyor. EFOR Yapı Akcity ile, Rize’de yükselen tüm projelerimizi keşfedin.

Modern Yaşamın Yeni Merkezi: AKCITY POINT
Akcity Point, konforlu yaşamı ve güçlü yatırım fırsatlarını bir araya getirerek Rize’nin merkezine yeni bir standart getiriyor.






Konforun Yeni Tanımı
Konut Sayısı ve Yapı Detayları
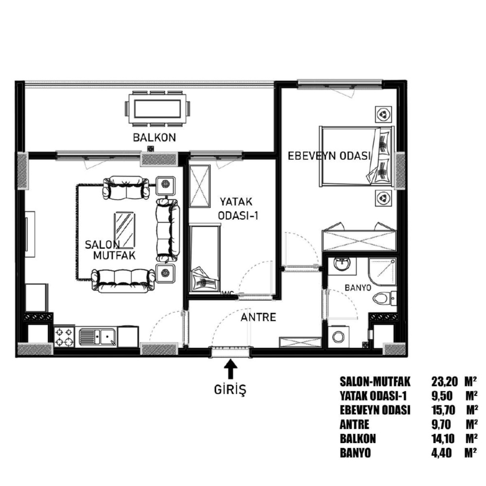
Akcity Point, toplamda 63 konut ve 2 ticari bağımsız bölümden oluşmaktadır. Projede ayrıca 1 adet kapıcı dairesi yer almaktadır.Daire tipleri ve büyüklükleri 3+1 ve 2+1 şeklidedir.Her dairede kullanıcıların konforu ön planda tutularak merkezi sistem yerden ısıtma, merkezi sıcak su, akıllı ev sistemi, vestiyer, porselen mutfak tezgâhı, çamaşır odası ve giyinme odası gibi birçok ayrıcalık sunulmaktadır.

Her Şey Yanı Başınızda
SOSYAL YAŞAM
Akcity Point, sakinlerine sağlıklı, konforlu ve sosyal bir yaşam sunacak şekilde tasarlanmıştır. Projede her yaş grubuna hitap eden sosyal alanlar, modern şehir hayatının ihtiyaçlarını karşılayacak donatılarla bir araya gelmektedir.Geniş ve ferah yaşam alanlarını tamamlayan ortak kullanım alanları; dinlenme, sosyalleşme ve aktif yaşam için çeşitli imkânlar sağlayarak Akcity Point’e ayrıcalıklı bir değer kazandırmaktadır.Merkezi konumu ile birleşen bu sosyal olanaklar, sakinlerine hem şehir merkezinde olmanın avantajlarını hem de huzurlu bir yaşamın keyfini aynı anda yaşatmaktadır.


Şehrin Enerjisiyle Hayatın Tam Ortasında
Akcity Point, Rize’nin kalbinde yükselen konumuyla, şehrin en dinamik sosyal ve ticari noktalarına kolay ulaşım imkânı sunuyor. Alışveriş merkezleri, restoranlar, kafeler ve çeşitli hizmet alanlarına yürüme mesafesinde yer alan proje, sakinlerine günlük ihtiyaçlarını en pratik şekilde karşılayabilecekleri bir yaşam ayrıcalığı sağlıyor. Bu merkezi konum, Akcity Point’i hem şehir hayatının enerjisini yakalamak isteyenler hem de konforlu bir yaşam arayanlar için vazgeçilmez bir adres haline getiriyor.
Kentin Dinamizmini Yansıtan Yeni Merkez
Akcity Point, adını bulunduğu özel konumdan alıyor. Dört yolun kesişiminde, üç mahallenin birleştiği noktada yükselen proje; sadece modern bir yaşam alanı değil, aynı zamanda şehrin dinamizmini yansıtan stratejik bir merkezdir.Ulaşım kolaylığı ve çevresindeki sosyal–ticari imkânlarla birleşen bu ayrıcalıklı lokasyon, Akcity Point’i hem şehir merkezine yakın yaşamak isteyenler hem de değerli bir yatırım arayanlar için vazgeçilmez bir tercih haline getiriyor.



 
								 
								


























